
北京瑞光極遠數碼科技有限公司
銷售熱線:010-51668966
24小時服務熱線:010-51668966
地址:北京市海淀區上地六街康得大廈
網站:zpnews.net
IDM GTD442雙千兆電話光端機
一、 概述
IDM GTD442綜合業(ye)務傳輸(shu)設備是北京瑞(rui)光(guang)極遠數碼科技有限公司推(tui)出的新一代(dai)基于高(gao)速光(guang)纖傳(chuan)輸技術和PCM技術的光(guang)電一體化傳(chuan)輸設備,集以太網傳(chuan)輸、PCM多(duo)業(ye)務接(jie)(jie)入功能于一體(ti),可(ke)滿足廣(guang)大用戶對寬帶、窄帶多(duo)種業(ye)務光(guang)纖傳輸和接(jie)(jie)入的需(xu)求。
IDM GTD442雙千兆電話光端機是一個有多種配置的光(guang)纖接(jie)入設備(bei),它(ta)可以提供以太網、電話(hua)、串口(kou)的光(guang)纖復用,可以和IDM GP2000系列光(guang)接口設(she)備互通。
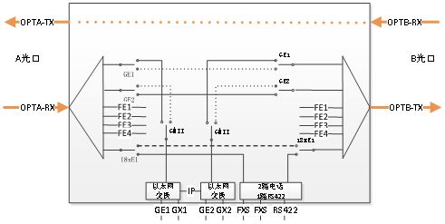
IDM GTD442雙千兆電話光端機的光纖接口速率(lv)為2.5G,可(ke)以(yi)提供(gong)2個線速1000M的以太網(wang)通(tong)道(dao),每個(ge)線(xian)速1000M的通(tong)道上均有(you)1個電口GE和1個光口(kou)GX;也能夠提(ti)供18個E1帶寬的(de)的(de)傳輸通道(dao)。
IDM GTD442綜合業務傳輸設備在(zai)線(xian)路(lu)傳輸(shu)接口(kou)上最(zui)多提供兩組光纖接口(kou)、構成互備份光口(kou)、或者(zhe)鏈網(wang)、環網(wang)等。
在用(yong)戶接(jie)口上,提供4組以太(tai)網接口、4路電(dian)話(局端、遠(yuan)端、磁石(shi)、二(er)線音頻(pin))、2路RS485或者1路RS422通(tong)道。其中以太網接(jie)口可以配置成(cheng)物理(li)隔離或者VLAN隔離模式(shi)。
在局端可以和(he)GP2000和GP2400光(guang)模(mo)塊互聯,通過光(guang)模(mo)塊可(ke)以連接(jie)IDM G3CP、IDM OMP、IDM 30E、IDM 30F、IDM GP-MPconv等設備。
可廣泛應用于公(gong)安、電(dian)力、鐵路、礦山等專網(wang)和移動、聯通(tong)、電(dian)信等公(gong)網(wang)領域(yu)。

IDMGTD442設備前面板

IDMGTD442設備后面板
二、 設備工作原(yuan)理

單(dan)光口設備工作原理圖

雙光口(kou)設(she)備工(gong)作原理圖
三、 產(chan)品特性
Ø 雙物(wu)理隔離(li)線速1000M以太網通道;
Ø 提供4路(lu)話路(lu)接口,可以是FXO局端自(zi)動電話、FXS遠端自動電(dian)話(hua)、MAG磁(ci)石電(dian)話;
Ø 2路可(ke)選的RS485數(shu)據通(tong)道(dao);
Ø 光口為SFP接口(kou),可以根(gen)據(ju)需求(qiu)配置光模(mo)塊;
Ø 可以定制(zhi)成雙光口,組成鏈網。
四、 單光口(kou)設備功能及用途
Ø 功能
u 點對點普通用途電話光端機圖
u 點對點磁石電話光端機
Ø 用途:
u 光纖到辦公室(shi),內(nei)網外網物(wu)理隔(ge)離;
u 公安卡口(kou)信息點建設(she)
u 社區(qu)、工廠信息點建(jian)設(she)
五、 雙光(guang)口設備功能及用(yong)途
Ø 功能
u 雙光口鏈網電話光端機接口注釋圖
u 與(yu)IDM GP2400-30E的鏈網(wang)組網(wang)圖
Ø 用途
u 隧道施工應用
u 河流監測治理
u 社區信息點建設
六、 技(ji)術規格(ge)
1) 光接(jie)口
|
接口類型 |
FC |
光纖模式 |
單模(mo)(可選多(duo)模) |
|
收/發速率 |
2.5Gbps |
收/發(fa)波長 |
1310nm/1550nm |
|
發光功率 |
-12~-6dBm |
接收靈敏度(du) |
優于-18dBm |
|
傳輸距離 |
20Km,可選裝遠(yuan)距離(li)光模塊實現更遠(yuan)距離(li)的光纖傳輸(shu) |
||
2) 以(yi)太網
|
接口類型 |
RJ-45 |
傳輸速率 |
10M/100M/1000M自適應 |
|
標準協議 |
支持IEEE802.3 |
工作方式 |
全/半雙(shuang)工/自適應 |
3) FXO、FXS接口
|
音頻范圍 |
300Hz~3400Hz |
壓(ya)縮率 |
ITU G.711中A律(lv) |
|
阻抗 |
三元復式(shi)阻(zu)抗(kang)200Ω+560Ω//0.1μF |
環路電流 |
20mA/路 |
4) 電源及功耗
|
供電方式 |
AC220V/DC- 48V |
整(zheng)機功耗 |
≤90W |
5) 環境條(tiao)件
|
工(gong)作溫度 |
-10oC ~+50oC |
相對(dui)濕度(du) |
0~95%(無凝結) |
6) 產品尺寸
|
長度×深度×高度 |
240*155*45(mm) |
七、 應(ying)用示例

鏈網應用

星網應用

環網應用
![]()

點對(dui)點




